Mon rêve à moi vous propose à la location ce duplex traversant, au calme et sans vis-à-vis de 4 pièces de 95m² (80,85m² loi Carrez), situé dans un immeuble de 1990 à 250m de la place de la Boule et de la futur station de métro.
Ce bien lumineux, situé au 1er et 2ème étage d’un immeuble de 2 étages sans ascenseur, se compose:
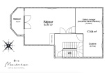
Au 1er niveau, d’une entrée avec rangement, d’un séjour de 24m² donnant accès au balcon, d’une cuisine séparée, aménagée et équipée de 17m², (anciennement cuisine + 3ème chambre, voir plan) ainsi que d’un WC indépendant.
A l’étage, de deux chambres de 12m² et 26m² avec rangements et dressing ainsi que d'une salle de bains avec WC.
Un grand box est inclu avec l'appartement
Le loyer est de 1950 euros par mois auquel s’ajoute les charges locatives mensuelles de 150 euros incluant l'eau froide, ainsi que l'entretien des parties communes
Le dépôt de garantie est d’un 1950 euros.
Le montant total TTC (toutes taxes comprises) des honoraires d’agence à payer par le locataire (pour la visite du logement, les frais de dossier, la rédaction du bail, la réalisation de l’état des lieux d’entrée et de sortie) est de 1215€ soit 15€ le m².
