Duplex de 95m2, lumineux, calme et sans vis-vis, avec balcon, parking et cave

Nanterre (92000)
Réf : L1125

Mon rêve à moi vous propose à la location ce duplex traversant, au calme et sans vis-à-vis de 4 pièces de 95m² (80,85m² loi Carrez), situé dans un immeuble de 1990 à 250m de la place de la Boule et de la futur station de métro.

Ce bien lumineux, situé au 1er et 2ème étage d’un immeuble de 2 étages sans ascenseur, se compose:
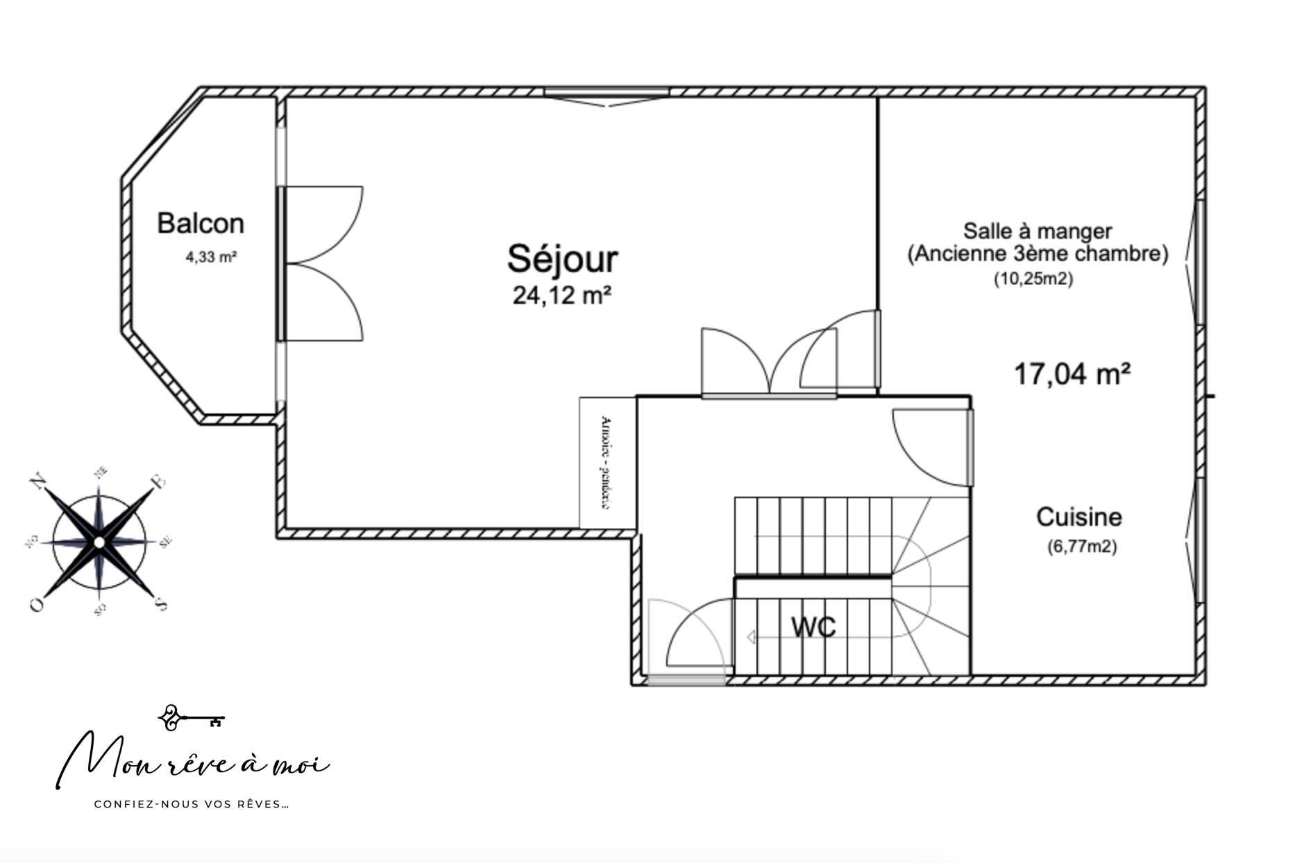
Au 1er niveau, d’une entrée avec rangement, d’un séjour de 24m² donnant accès au balcon, d’une cuisine séparée, aménagée et équipée de 17m², (anciennement cuisine + 3ème chambre, voir plan) ainsi que d’un WC indépendant.

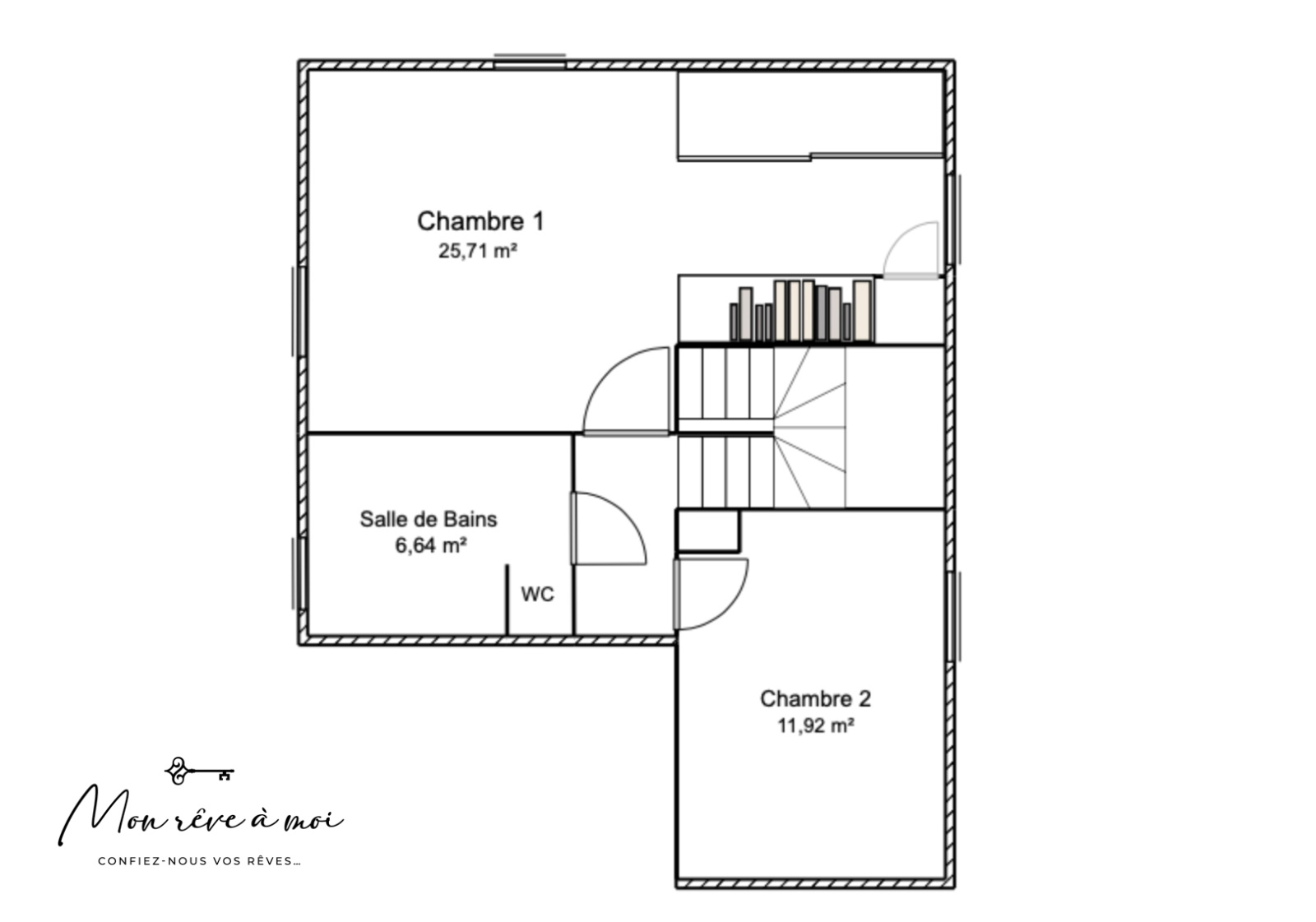
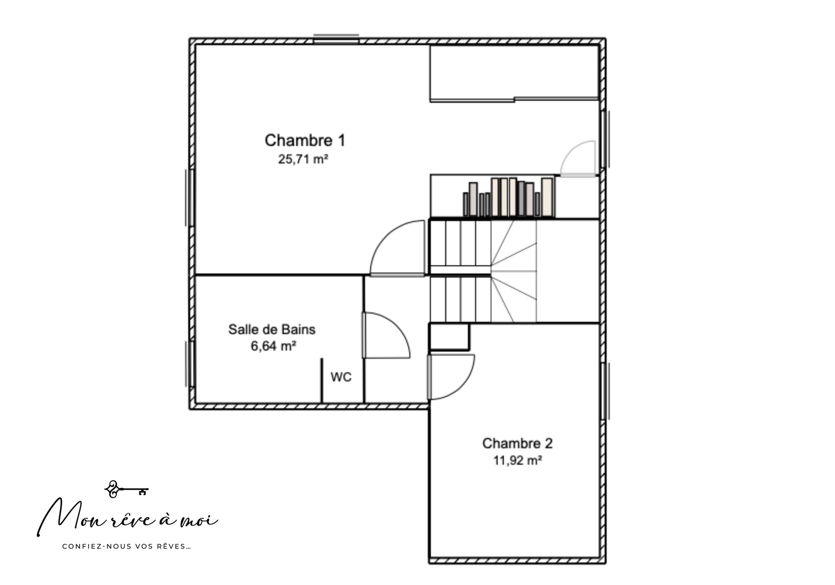
A l’étage, de deux chambres de 12m² et 26m² avec rangements et dressing ainsi que d'une salle de bains avec WC.
Un grand box est inclu avec l'appartement

Le loyer est de 1950 euros par mois auquel s’ajoute les charges locatives mensuelles de 150 euros incluant l'eau froide, ainsi que l'entretien des parties communes

Le dépôt de garantie est d’un 1950 euros.
Le montant total TTC (toutes taxes comprises) des honoraires d’agence à payer par le locataire (pour la visite du logement, les frais de dossier, la rédaction du bail, la réalisation de l’état des lieux d’entrée et de sortie) est de 1215€ soit 15€ le m².

Prix du loyer 2 100 € CC*
Pièce(s) 4
Chambre(s) 2

Caractéristiques du bien

Caractéristiques Valeurs
Code postal 92000
Surface habitable (m²) 81 m²
Surface loi Boutin (m²) 80,82 m²
Nombre de chambre(s) 2
Nombre de pièces 4
Meublé NON
Etage 2
Nombre de niveaux 2
Ascenseur NON
Vue Dégagée
Nb de salle de bains 1
Cuisine Séparée
Type de cuisine Equipée
Mode de chauffage Electrique
Type de chauffage Panneaux rayonnant
Format de chauffage Individuel
Interphone OUI
Balcon OUI
Nombre de garage 1
Cave OUI
Exposition Ouest
Année de construction 1992

Infos financières

Caractéristiques Valeurs
Loyer CC* / mois 2 100 €
Honoraires TTC charge locataire 1 215 €
Dont état des lieux 243 €
Dépôt de garantie TTC 1 950 €
Charges locatives (provision donnant lieu à régularisation annuelle) 150 €

Bilans énergétiques

DPE GES
Ce bien vous intéresse ?
Fieldset par défaut
Fieldset par défaut
Validation

* Champs obligatoires

Contacter l'agence
Validation
Les informations recueillies sur ce formulaire sont enregistrées dans un fichier informatisé par La Boite Immo agissant comme Sous-traitant du traitement pour la gestion de la clientèle/prospects de l'Agence / du Réseau qui reste Responsable du Traitement de vos Données personnelles.
La base légale du traitement repose sur l’intérêt légitime de l'Agence / du Réseau.
Elles sont conservées jusqu'à demande de suppression et sont destinées à l'Agence / au Réseau.
Conformément à la loi « informatique et libertés », vous pouvez exercer votre droit d'accès aux données vous concernant et les faire rectifier en contactant l'Agence / le Réseau.
Si vous estimez, après avoir contacté l'Agence / le Réseau, que vos droits « Informatique et Libertés » ne sont pas respectés, vous pouvez adresser une réclamation à la CNIL.
Nous vous informons de l’existence de la liste d'opposition au démarchage téléphonique « Bloctel », sur laquelle vous pouvez vous inscrire ici : https://www.bloctel.gouv.fr 
Dans le cadre de la protection des Données personnelles, nous vous invitons à ne pas inscrire de Données sensibles dans le champ de saisie libre
Ce site est protégé par reCAPTCHA, les Politiques de Confidentialité et les Conditions d'Utilisation de Google s'appliquent.

* CC : Charges comprises