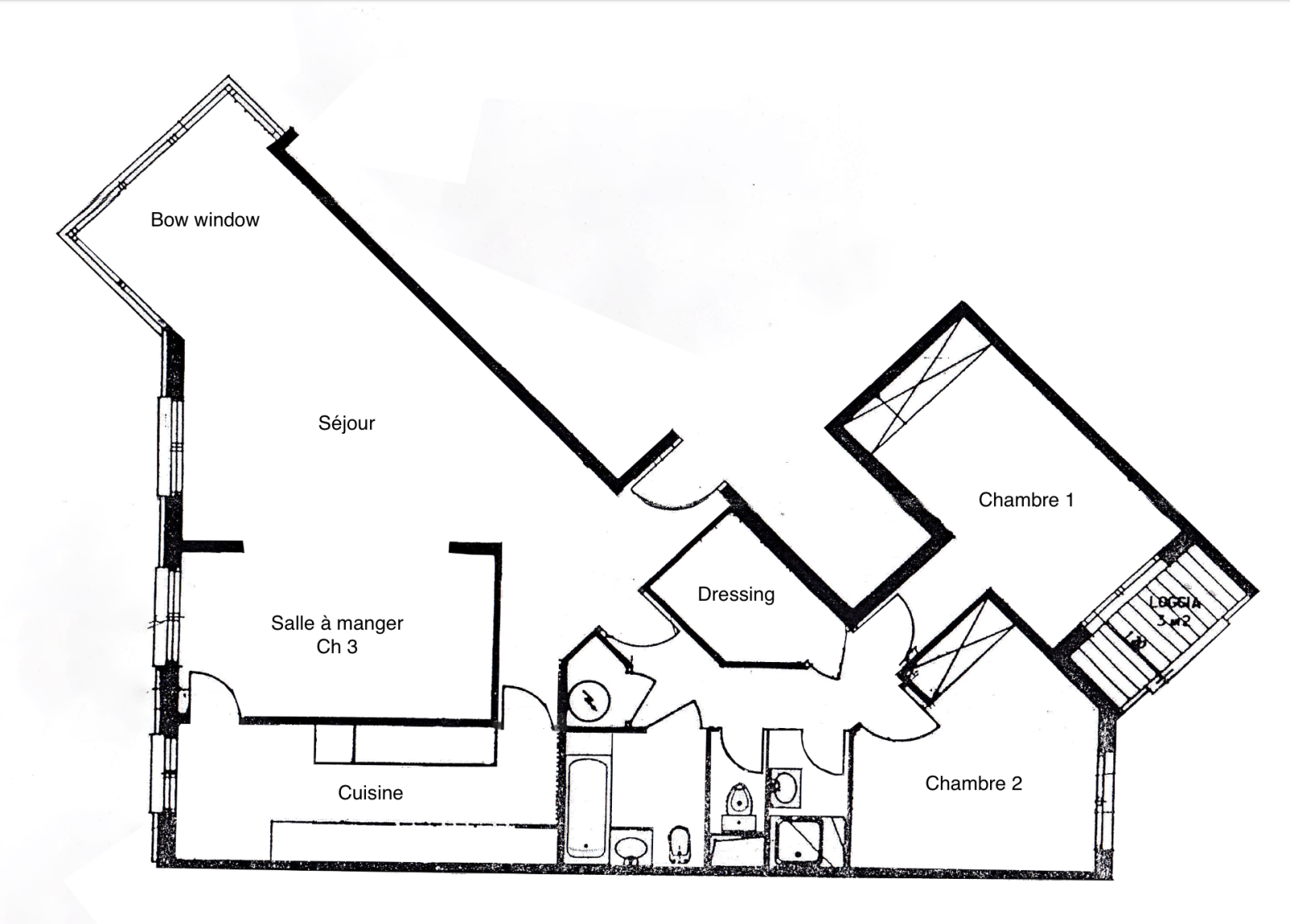
Parc du Château - Mon rêve à moi, 10 ans d'expérience et une commission fixe de 6 500 € vous propose à la vente et en exclusivité cet appartement de type F3/F4 de 101,00m2 (94,54 loi Carrez) lumineux et traversant, situé au 2ème étage avec ascenseur d’un immeuble de 1988 situé à proximité des transports, écoles et commerces. (T2 station Suresnes-Longchamp à 600m).
Ce bien de 3/4 pièces à rafraîchir, se compose d’une entrée, d’un double séjour de 39m2, d’une cuisine séparée de 13m2, de deux chambres de 14m2 et 11m2 avec rangements dont une avec balcon (3ème possible, voir plan), d’un dressing de 4m2, d’une salle de bains, d’une salle d’eau ainsi que d’un WC indépendant.
Les charges de 260€ par mois incluent l’eau froide, l’entretien des parties communes, l’ascenseur ainsi que les services d’un gardien.
La taxe foncière est de 1833€
Une grande place de stationnement ainsi qu’une cave sont incluses dans cette vente.
Une seconde place est proposée en option.
Vidéo sur demande via Whatsapp
