Richelieu Châtaigneraie (Nord) - Mon rêve à moi, 10 ans d'expérience et une commission fixe de 6 900 € vous propose cet appartement de 3 pièces au calme de 59m² (59,11m² loi Carrez) avec terrasse, parking (box) et cave, situé en rez-de-jardin d’une petite résidence de deux étages, à proximité des écoles et des commerces (Lycée Richelieu, Ecole George Sand à 5/7 min à pied)
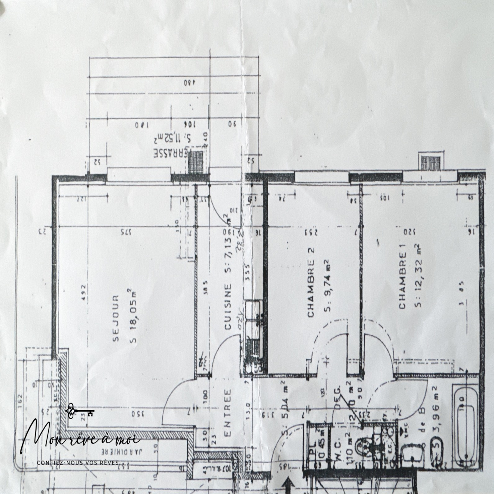
Ce bien lumineux et ensoleillé (orienté ouest), se compose:
d’une entrée avec rangements, d’un séjour de 18m², d’une cuisine séparée, aménagée et équipée de 7m² (ouvrable sur le séjour), de 2 chambres de 10m² et 12m², d’une salle de bains ainsi que d’un WC indépendant.
Les charges de 140€ par mois, incluent l’eau froide, l’ascenseur ainsi que l’entretien des parties communes et des espaces verts.
La taxe foncière 2023 est de 1105€
Une cave est incluse dans cette vente
Un box au sous-sol de la résidence est proposé en sus au prix de 30 000€
